Проект
Дом на Михайловском шоссе
Город
Рязань
Площадь
144,23м²
Год
2024
Дом на Михайловском шоссе
Город
Рязань
Площадь
144,23м²
Год
2024
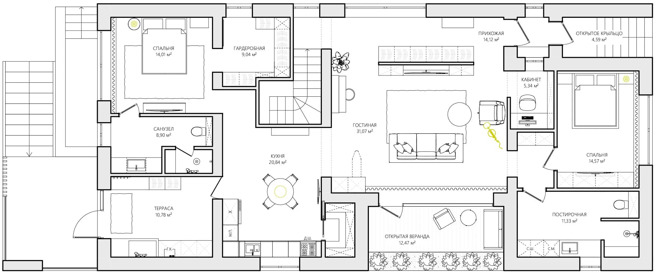
На момент, когда заказчица обратилась к нам за дизайном интерьера, уже был возведён цокольный этаж этого дома. Архитектурный проект, по которому началось строительство, разрабатывался много лет назад без учёта внутреннего наполнения. Мы искренне убеждены, что внешний облик дома и его содержание неразрывно связаны между собой: функция и эргономика диктуют форму, а стилистика оформления должна быть едина снаружи и изнутри. Поэтому, чтобы концепция получилась целостной, мы решили действовать комплексно. Переосмыслили структуру плана с учётом расстановки мебели, и это ощутимо повлияло на объём: изменилось расположение окон и дверей, появились полноценные входные группы. Следом мы актуализировали отделку фасадов и увязали её с интерьером. В результате дом обрёл гармонию — архитектурную и смысловую.

































Нажмите, чтобы связаться
Узнать подробности разработки проекта или назначить встречу для личного знакомства
a29studio@yandex.ru
Скопировано
Смотреть
